Forgotten Coast Construction LLC
When is the best time to build your Custom Home
The Best Time to Build a Custom Home

The Best Time to Build a Custom Home on the Forgotten Coast
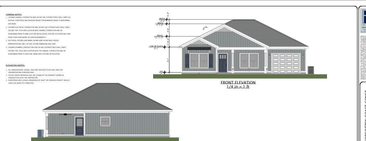
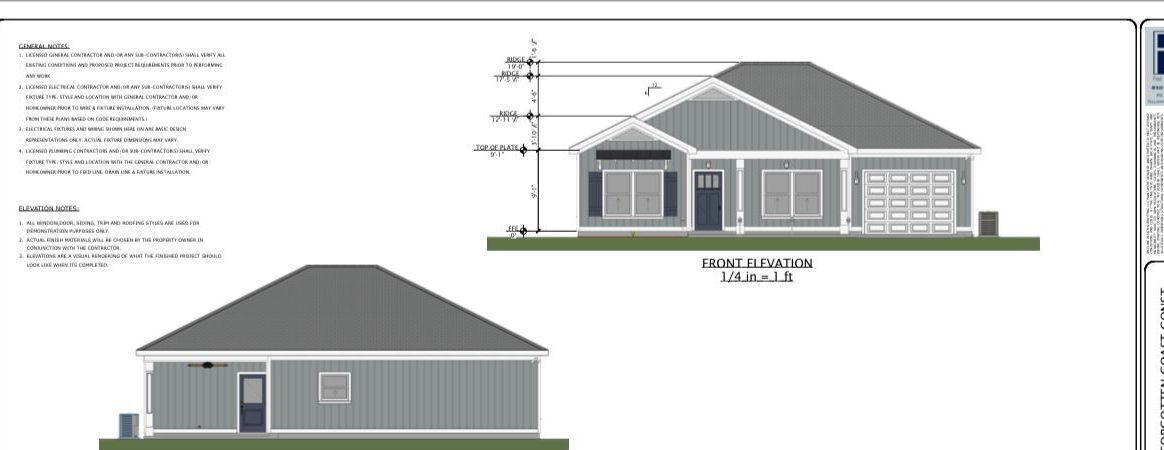
Building a custom home on the Forgotten Coast is an exciting journey, but timing plays a crucial role in ensuring a smooth construction process. Whether you're dreaming of a beachfront retreat or a cozy inland home, understanding the best time to build can help you save money, avoid delays, and take advantage of optimal weather conditions.
Seasonal Considerations
Spring & Summer: Peak Building Season
Spring and summer are the busiest times for construction along the Forgotten Coast. With warm temperatures and longer daylight hours, builders can work efficiently, and materials tend to dry faster. However, this season comes with higher demand for contractors and materials, potentially increasing costs and extending project timelines.
Fall: A Great Balance
Fall is often an ideal time to start building a custom home. The weather is still mild, humidity levels decrease, and the risk of hurricanes diminishes. Additionally, contractors may have more availability, and material prices can be more stable compared to the peak summer season.
Winter: Off-Season Advantages
While winter months bring cooler temperatures, the Forgotten Coast typically experiences mild winters compared to other parts of the country. This off-season period can be beneficial for budget-conscious homeowners, as contractors may offer more competitive pricing and faster project timelines due to lower demand.
Hurricane Season & Weather Challenges
The Forgotten Coast is no stranger to tropical storms, with hurricane season running from June to November. Starting construction before or after this period can help minimize weather-related delays. If you're building during hurricane season, working with a builder experienced in storm-resistant construction techniques is essential.
Material & Labor Availability
The availability of materials and skilled labor can fluctuate throughout the year. Planning your build around times when demand is lower ”typically late fall and winter”can help ensure better pricing and more reliable scheduling.
Your Ideal Timeline
Planning & Design (3-6 Months Before Construction)
Work with architects to finalize plans
Obtain necessary permits and approvals
Secure financing
Site Preparation & Foundation (Early Fall or Winter)
Clear land, lay the foundation, and start framing
Major Construction Phases (Winter to Spring)
Roofing, electrical, plumbing, and interior work
Final Touches & Move-In (Late Spring to Early Summer)
Landscaping, interior finishes, and final inspections
Build with Forgotten Coast Construction
At Forgotten Coast Construction, we specialize in custom home building designed to withstand the coastal environment while meeting your unique vision. Whether you're ready to start now or planning for the future, we will guide you through every step to ensure a seamless experience.
Contact us today to discuss your dream home and find the perfect time to start building on the Forgotten Coast!

When Michael relocated to Carrabelle, FL, he wanted a classic Florida-style home with charm, upgraded finishes, and quality construction. After meeting with Cody and Jennifer from Forgotten Coast Construction, he decided to build his dream home in St. James Bay Golf Community. “What a wonderful home, 5 STARS! Cory and Jennifer built my custom home with integrity, quality, and attention to detail. My 1,500 sq. ft. home is incredible! The inspection was flawless, and their service after closing has been excellent.” We’re proud to know Michael is loving his new home and thrilled to welcome him to the St. James Bay community. If you’re ready to build your own custom home along Florida’s Forgotten Coast, contact Cody and Jennifer at Forgotten Coast Construction. 📞 (850) 509-1376 | 🌐 forgottencoastconstruction.com

While the permit program in Franklin County has been in place for some time, it’s worth noting several critical updates and clarifications you should keep in mind if you’re planning a custom home build: • The county’s building department highlights that “ALL PROJECTS in a special flood hazard area require a permit.” • The county uses an online portal (CitizenServe) for permit submittals, making it easier to apply, track, pay, and schedule inspections. • There are specific wind-load, flood-elevation, and site set-back requirements unique to coastal and vulnerable zones (e.g., the 130 mph or 140 mph wind speed depending on island/coastal location). • Zoning rules such as minimum lot size, building setbacks and impervious coverage remain significant in Franklin County. In short: building a custom home here requires careful preparation. Getting the permit right means less risk of delays and additional costs. ⸻ Step-by-Step Guide to Obtaining the Permit for a Custom Home Here’s a practical pathway for how you’d navigate the process in Franklin County if you are planning a new single-family custom home. 1. Preliminary: Verify Zoning, Lot & Site Conditions • Check the zoning of the lot (e.g., R-1, R-2, etc) via the county’s zoning classifications. • Ensure your lot meets the minimum lot size, width, depth or is an existing lot of record. Example: R-1 minimum is one acre with at least 100 feet width and depth (or existing lot of record) in some districts. • Check required setbacks: e.g., minimum 25 ft from road, 10 ft from side/rear property line, 50 ft from wetlands/mean high water line in some zones. • Verify flood zone, base flood elevation (BFE), whether you are in a “V” zone or coastal hazard area, and what the required elevation/engineered certification will be. • Confirm availability of utilities (water, sewer or septic, well) and whether there are any site‐specific constraints (wetlands, shoreline, critical habitat zones). Tip: If your lot fronts the Gulf or is near mean high water, plan early for the extra requirements (shoreline‐variance, higher setbacks, flood elevation, engineered certification). 2. Prepare Documentation & Plans You will need to assemble the following, among other items: • Two (or more) complete sets of building plans prepared by or certified by a Florida architect or engineer. For some shoreline/coastal zones, wind-load and wave action certifications are required. • A survey of the property by a registered surveyor, showing legal description, parcel ID number, flood information, site topography if required. • A site plan indicating the location of the house, septic system (or sewer), driveway, cleared areas, well or water service. • Proof of septic or sewer (or letter of service) and water well or water district supply. • A Florida Energy Code form (for residential new construction) completed by the owner or installer or engineer/architect. • Notice of Commencement (once construction begins) and other forms (e.g., termite treatment affidavit) as required. 3. Submit Permit Application • You can apply online via the CitizenServe portal (fastest) or in-person/by mail. • If submitting paper: use the county’s “New Residential Building Permit Application” packet. • Make sure the application is complete — incomplete applications get returned and delay processing. • For site-prep, or clearing of vegetation before construction, there may be a separate zoning permit. 4. Plan Review & Approval • Once submitted, the building department reviews the plans, building code compliance, flood elevation, wind load, setbacks, etc. See “Project Guidance” for building projects. • The zoning department may also review the application (especially if in special zones like critical shoreline). • You may receive a request for corrections or additional documentation — this will delay issuance until all corrections are approved. • Once approved, you will receive the permit and you can begin construction. 5. Construction & Inspections • After permit issuance, you must begin work within the timeframe allowed (often within 6 months of permit issuance) and maintain continuous activity. • During construction you will need to schedule required inspections (footings, foundation, framing, plumbing, electrical, final, etc.) — using the online portal helps schedule easily. • If building in a flood hazard area, ensure the finished structure meets the required elevation / engineered drawings. The building department will forbid occupancy until compliance. 6. Final Approval & Certificate of Occupancy • Once construction is complete, the final inspection is scheduled. The “Final Documents” form must be completed (available on county website). • If you complied with all requirements, you will receive a Certificate of Occupancy (or final approval) which legally allows you to occupy the home. • If there are any outstanding issues (e.g., elevation certificate not submitted, sewer/septic not verified), the county may withhold occupancy authorization. ⸻ 5 Key “Watch-Outs” / Tips for a Smooth Permit Process 1. Don’t assume your lot is build-ready. Especially near the coast or in flood zones: knowing your elevation, setbacks, shoreline rules, and whether you need a variance can save major headaches. 2. Wind load and engineering requirements matter. In areas like St. George Island or other exposed locations, you may need certificates for 140 mph wind-load or wave action. 3. Choose your contractor or owner-builder wisely. Homeowners can act as a contractor, but must assume all responsibility. The county’s checklist shows the forms (owner builder affidavit) required. 4. Use the online portal. Submitting online via CitizenServe accelerates the process, allows you to track reviews, pay fees, schedule inspections — faster than paper/mail. 5. Keep records and communicate. After you get the permit, make sure to coordinate pre-construction site-prep (if applicable), inspections, and final sign-off. Delays often come from missing documentation or inspection scheduling hiccups. ⸻ Conclusion If you’re planning a custom home in Franklin County, Florida, the permitting process — while detailed — is quite manageable if you follow the steps and prepare ahead of time. Begin with verifying zoning, flood and site conditions; prepare your plans and supporting documents; submit your application (ideally online); navigate the review; move into construction and inspections; and finally obtain your occupancy approval. By staying organized and proactive, you’ll reduce surprises, avoid costly delays, and be well on the way to building your dream home in this unique and beautiful corner of Florida.

There’s nothing quite like watching a dream home come to life from the ground up. At Forgotten Coast Construction LLC, our team is proud to be framing another custom coastal home inside the beautiful St. James Bay Golf Resort in Carrabelle, Florida. This stage — wall framing — is where the vision starts to take shape. The foundation is set, the plumbing rough-in is complete, and now the walls rise to outline every room, window, and view that makes a home special. It’s the moment our clients can finally walk through and say, “This is where my dream begins.” Precision Framing for Strength and Longevity Our framing crews focus on quality craftsmanship and durability. Every wall is measured, leveled, and secured using premium lumber and fasteners that meet or exceed Florida’s coastal wind-load standards. We build each structure to stand strong against the Gulf’s salty air and summer storms while maintaining the timeless look of a coastal beach house. Building Dreams Along the Forgotten Coast St. James Bay offers a one-of-a-kind lifestyle — peaceful golf-course views, minutes from Carrabelle Beach, and surrounded by nature preserves. It’s no wonder so many homeowners are choosing this community for their custom home builds. We’re honored to help bring those visions to life with every project we complete. Ready to Build Your Dream Home? If you’ve been thinking about designing or building your own custom home in Carrabelle, St. James Bay, or anywhere along the Forgotten Coast, our team is ready to guide you through the process — from engineered plans to finished product. 📞 Call Forgotten Coast Construction LLC today at (850) 509-1376 or visit www.forgottencoastconstruction.com

We’ve officially broken ground on another custom home in the St. James Bay Golf Community here in Carrabelle, FL! Form boards are set, plumbing is in, and the foundation is taking shape — the first step toward a beautiful new home on Florida’s Forgotten Coast. At Forgotten Coast Construction LLC, we’re proud to bring quality craftsmanship and local experience to every stage of the build — from foundation to finish. 👉 Explore more of our recent projects or start planning your own dream home at www.ForgottenCoastConstruction.com . #CustomHomeBuilder #StJamesBay #CarrabelleFL #ForgottenCoastConstruction #FoundationStage #DreamHome #FloridaHomeBuilder

If you’re planning a move to Florida’s Forgotten Coast, one of the most important decisions you’ll face is whether to buy a spec home or build a custom home. Families in Wakulla and Franklin County often weigh the convenience of a ready-to-move-in house against the flexibility and long-term value of a home built specifically for their needs Both options come with pros and cons. The right choice depends on your timeline, lifestyle, budget, and long-term goals. This guide breaks down the differences so you can make the best decision for your family.

When building a custom home in Wakulla or Franklin County, one of the most important decisions you’ll face is how to structure your building contract. At Forgotten Coast Construction, we offer both cost-plus and fixed price contracts—but which one is right for your project? Let’s break down the pros and cons of each to help you make the best decision for your dream home. ⸻ What is a Fixed Price Contract? A fixed price contract gives you a set total price for the entire build. This includes labor, materials, permits, and everything outlined in the plans and specs. Pros: • Price certainty – You know the full cost up front. • Easier budgeting – No surprises for your bank or lender. • Less involvement required – Good for out-of-town owners or busy professionals. Cons: • Limited flexibility – Changes after signing can result in costly change orders. • Higher initial estimate – Builders add a cushion for unknowns. ⸻ What is a Cost-Plus Contract? In a cost-plus contract, you pay for the actual cost of the build, plus an agreed-upon builder’s fee (a percentage or flat fee). Pros: • Full transparency – You see every invoice and expense. • Potential savings – If material costs drop or plans change, you benefit. • Custom flexibility – Great for evolving plans or high-end finishes. Cons: • Cost variability – Your final price may fluctuate. • More involvement needed – You’ll be asked to approve costs and selections. ⸻ Which Contract Type is Best for You? At Forgotten Coast Construction, we typically recommend: • Fixed Price for homeowners who want a clear budget and don’t plan to make big changes. • Cost-Plus for custom builds with premium finishes or evolving plans—especially when the homeowner wants input on every detail. We work throughout Crawfordville, St. Marks, Carrabelle, and the surrounding Forgotten Coast, and our team can help you choose the right contract based on your goals, timeline, and budget. ⸻ Ready to Build Your Coastal Dream Home? Whether you’re building on acreage near the St. Marks Wildlife Refuge or a beach lot in Carrabelle, choosing the right contract is key to a smooth and successful build. Contact Forgotten Coast Construction today to schedule a consultation and discuss your options. Let’s bring your vision to life—on your terms.


